Felipe Nogal Bravo | Arquitecto
noticias proyectos contacto estudio  
 
imágenes planos +información

LEMA:"ESQUIVEL"
NAVARRO - MOSSENTA - NOGAL ARQUITECTOS, S.L.
FELIPE NOGAL BRAVO, co-autor como Arquitecto Socio

VIVIENDAS PROTEGIDAS PARA JOVENES EN ED-MU2 - CERRO MURIANO - CORDOBA| 2008 - CONCURSO DE IDEAS

  • VIVIENDAS PARA JOVENES_CERROMURIANO_PLANTAS BAJA Y PRIMERA_DE CONJUNTO VIVIENDAS PARA JOVENES_CERROMURIANO_PLANTAS BAJA Y PRIMERA_DE CONJUNTO VIVIENDAS PARA JOVENES_CERROMURIANO_PLANTAS BAJA Y PRIMERA_DE CONJUNTO
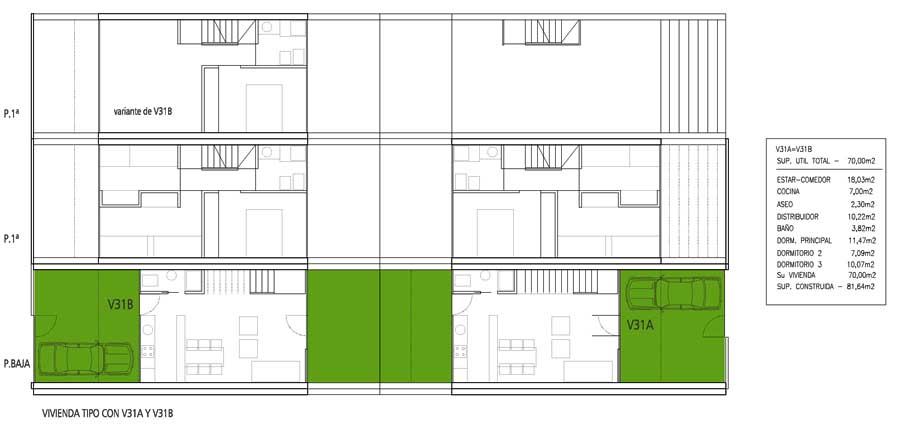
  • VIVIENDAS PARA JOVENES_CERROMURIANO_VIVIENDA TIPO PROPUESTA (CASO DE V31: PLANTAS BAJA Y PRIMERA) VIVIENDAS PARA JOVENES_CERROMURIANO_VIVIENDA TIPO PROPUESTA (CASO DE V31: PLANTAS BAJA Y PRIMERA) VIVIENDAS PARA JOVENES_CERROMURIANO_VIVIENDA TIPO PROPUESTA (CASO DE V31: PLANTAS BAJA Y PRIMERA)
  • VIVIENDAS PARA JOVENES_CERROMURIANO_SECUENCIA DE SECCIONES Y ALZADOS TIPO_MODULO DE VIVIENDA VIVIENDAS PARA JOVENES_CERROMURIANO_SECUENCIA DE SECCIONES Y ALZADOS TIPO_MODULO DE VIVIENDA VIVIENDAS PARA JOVENES_CERROMURIANO_SECUENCIA DE SECCIONES Y ALZADOS TIPO_MODULO DE VIVIENDA
  • VIVIENDAS PARA JOVENES_CERROMURIANO_PLANO DE CUBIERTAS DEL CONJUNTO E INTEGRACION URBANA VIVIENDAS PARA JOVENES_CERROMURIANO_PLANO DE CUBIERTAS DEL CONJUNTO E INTEGRACION URBANA VIVIENDAS PARA JOVENES_CERROMURIANO_PLANO DE CUBIERTAS DEL CONJUNTO E INTEGRACION URBANA
  • VIVIENDAS PARA JOVENES_CERROMURIANO_SECCION LONGITUDINAL DE MODULO DE VIVIENDAS CONTIGUO VIVIENDAS PARA JOVENES_CERROMURIANO_SECCION LONGITUDINAL DE MODULO DE VIVIENDAS CONTIGUO VIVIENDAS PARA JOVENES_CERROMURIANO_SECCION LONGITUDINAL DE MODULO DE VIVIENDAS CONTIGUO
     

ESQUIVEL | TIPOLOGIA Y USOS

LA TIPOLOGIA ESTABLECIDA ES LA QUE NOS RESULTA MAS VERSATIL EN CUANTO A POSIBILIDADES DE DISTRIBUCION ALTERNATIVAS DE CARA A UNA DEMANDA MAS ABIERTA Y CAMBIANTE POR LA APARICION DE NUEVOS MODELOS DE FAMILIA.

EL PROGRAMA ATIENDE A UNAS NECESIDADES MAXIMAS DE TRES DORMITORIOS A DESARROLLAR EN PLANTA PRIMERA MANTENIENDO EN PLANTA BAJA UNA DISPOSICION DIAFANA QUE ENGLOBA ESTANCIA – COMEDOR – COCINA Y EN EL LATERAL DE ESCALERA EL ASEO Y DESPENSA. ESTA ZONA DE ESTAR ES POR SU POSICION, PASANTE, CON DOBLE ORIENTACION Y CON MEJORES POSIBILIDADES DE ADAPTACION AL CONFORT DESEADO Y A LA PROYECCION – AMPLIACION DE SU USO HACIA LOS ATRIO – PATIOS ANTERIOR Y POSTERIOR DE LA CASA.

LA PLANTA PRIMERA, EN ATENCION A LOS GUSTOS O NECESIDADES ESPECIFICAS QUE REQUIERAN LOS DEMANDANTES, PUEDEN REDUCIR SU PROGRAMA PASANDO DE TRES A DOS O UN DORMITORIO, DEJANDO EL ESPACIO RESTANTE COMO ZONA DE ESTUDIO O ESTAR ALTERNATIVO.

LA CUBIERTA SE CONCIBE COMO UNA AZOTEA, PARA PODER DISFRUTAR Y/O APROVECHAR DE MAYOR ESPACIO LIBRE, Y CON ACCESIBILIDAD DIRECTA A LAS INSTALACIONES DE ENERGIA SOLAR.

SINGULARMENTE, A LA VIVIENDA DEL VERTICE SUR-OESTE DE LA ACTUACION, JUNTO AL CENTRO DE TRANSFORMACION, LA DOTAMOS DE GARAJE BAJO RASANTE, ACCESIBLE A NIVEL DESDE LA CALLE PROFESORA CATALINA CASTRO, AL PRODUCIRSE PUNTUALMENTE EN ESTA ZONA UNA DIFERENCIA DE COTAS IMPORTANTE, SOLUCIONANDO ASÍ LA TRANSICION VOLUMETRICA CON LAS PARCELAS ALEDAÑAS.

UNO DE LOS ASPECTOS MAS INTERESANTES DE LA PROPUESTA QUIZAS SEA EL PROCESO DE COSTRUCCION QUE PODRIA HACERSE MAYORITARIMENTE DE FORMA INDUSTRIALIZADA, CASI EN SECO, REDUCIENDO CONSIDERABLEMENTE EL TIEMPO DE EJECUCION, Y MEJORANDO LAS POSIBILIDADES DE CONTROL, AL JUGAR CON ELEMENTOS MUY REPETIDOS.

ASI LA ESTRUCTURA VERTICAL – MUROS LATERALES SE PLANTEA A BASE DE PANELES PORTANTES DE HORMIGON ARMADO PREFABRICADOS, LOS FORJADOS MEDIANTE LOSAS ALIGERADAS, Y LOS CERRAMIENTOS CON PANELES LIGEROS TIPO FENOLICO DE ALMA AISLADA, DISTINGUIENDO CLARAMENTE DESDE EL EXTERIOR LA NATURALEZA NO PORTANTE DE ESTOS ULTIMOS POR LA UTILIZACION DEL COLOR.

 
 
Calle El Salvador 6 - 1º   28012 Madrid  España |  s_telefono s_fax +34 913664672  |  e-mail: estudio@nogalarquitectura.es     blogger_conexion-Blogger