Felipe Nogal Bravo | Arquitecto
noticias proyectos contacto estudio  
 
imágenes planos +información

LEMA:"NORAY"
NAVARRO - MOSSENTA - NOGAL ARQUITECTOS, S.L.
FELIPE NOGAL BRAVO, co-autor como Arquitecto Socio

ESTACION MARITIMA DEL PUERTO EXTERIOR DE CIUTADELLA - MENORCA - ILLES BALEARS | 2007 - CONCURSO DE IDEAS

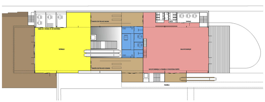
  • ESTACION_MARITIMA_CIUTADELLA_PLANTA INFERIOR_NIVEL ZONA DE PUERTO ESTACION_MARITIMA_CIUTADELLA_PLANTA INFERIOR_NIVEL ZONA DE PUERTO ESTACION_MARITIMA_CIUTADELLA_PLANTA INFERIOR_NIVEL ZONA DE PUERTO
  • ESTACION_MARITIMA_CIUTADELLA_PLANTA SUPERIOR_NIVEL CIUDAD_ACCESO PRINCIPAL_Y_PASARELA A BARCOS ESTACION_MARITIMA_CIUTADELLA_PLANTA SUPERIOR_NIVEL CIUDAD_ACCESO PRINCIPAL_Y_PASARELA A BARCOS ESTACION_MARITIMA_CIUTADELLA_PLANTA SUPERIOR_NIVEL CIUDAD_ACCESO PRINCIPAL_Y_PASARELA A BARCOS
  • ESTACION_MARITIMA_CIUTADELLA_NIVEL ESPERA Y SERVICIOS SOBRE VESTIBULO ESTACION_MARITIMA_CIUTADELLA_NIVEL ESPERA Y SERVICIOS SOBRE VESTIBULO ESTACION_MARITIMA_CIUTADELLA_NIVEL ESPERA Y SERVICIOS SOBRE VESTIBULO
  • ESTACION_MARITIMA_CIUTADELLA_PROPUESTA GENERAL_INTEGRACION EN ZONA DE PUERTO Y CIUDAD ESTACION_MARITIMA_CIUTADELLA_PROPUESTA GENERAL_INTEGRACION EN ZONA DE PUERTO Y CIUDAD ESTACION_MARITIMA_CIUTADELLA_PROPUESTA GENERAL_INTEGRACION EN ZONA DE PUERTO Y CIUDAD
  • ESTACION_MARITIMA_CIUTADELLA_ALZADO ESTE A ZONA DE PUERTO_SECCION LONGITUDINAL CARACTERISTICA ESTACION_MARITIMA_CIUTADELLA_ALZADO ESTE A ZONA DE PUERTO_SECCION LONGITUDINAL CARACTERISTICA ESTACION_MARITIMA_CIUTADELLA_ALZADO ESTE A ZONA DE PUERTO_SECCION LONGITUDINAL CARACTERISTICA
  • ESTACION_MARITIMA_CIUTADELLA_SECCION TRANSVERSAL POR SALA DE EMBARQUE ESTACION_MARITIMA_CIUTADELLA_SECCION TRANSVERSAL POR SALA DE EMBARQUE ESTACION_MARITIMA_CIUTADELLA_SECCION TRANSVERSAL POR SALA DE EMBARQUE
  • ESTACION_MARITIMA_CIUTADELLA_SECCION TRANSVERSAL POR VESTIBULO Y ZONA DE TRANSITO ESTACION_MARITIMA_CIUTADELLA_SECCION TRANSVERSAL POR VESTIBULO Y ZONA DE TRANSITO ESTACION_MARITIMA_CIUTADELLA_SECCION TRANSVERSAL POR VESTIBULO Y ZONA DE TRANSITO
     

NORAY

SE PROCURA UNA ORGANIZACIÓN FLEXIBLE DE LOS USOS, DOTANDO AL EDIFICIO DE UNA CRUJIA LATERAL CON UNA DISPOSICION ALINEADA DE LAS PIEZAS COMPARTIMENTANDO EL ESPACIO SEGÚN NECESIDADES.

EL ACCESO AL VESTÍBULO PRINCIPAL SE EFECTUA DESDE EL ESPACIO PUBLICO, PROTEGIDO POR EL FORMIDABLE VUELO DE LA CUBIERTA, A MODO DE GRAN PUERTA QUE INVITA A ENTRAR EN EL EDIFICIO.

LA LLEGADA DESDE LA CIUDAD AL EDIFICIO SE EFECTUA A TRAVES DE ESTA GRAN MARQUESINA-LONJA CASI LEVITANDO SOBRE LA PLAZA SITUADA AL ESTE DEL CONJUNTO.

A CONTINUACIÓN, EL VESTIBULO DE ACOGIDA, CON UN GRAN VACIO AL QUE SE ASOCIAN LOS NÚCLEOS DE ESCALERAS Y ASCENSOR,  QUE NOS COMUNICA TAMBIEN VISUALMENTE CON LA PLANTA DE LAS TIENDAS Y LA CAFETERIA-RESTAURANTE, ABIERTA AL MAR EN EL OESTE Y EL AREA COMERCIAL TAMBIEN ACCESIBLE DESDE EL NORTE Y DESDE LA PLAYA DE PREEMBARQUE.

EL ESPACIO INTERIOR SE DESARROLLA ALREDEDOR DE UN GRAN HUECO PRACTICADO EN EL NIVEL I, QUE RELACIONA LOS TRES NIVELES.

- EN EL VESTIBULO, LOS SERVICIOS DE INFORMACIÓN, TAQUILLAS Y COMPAÑIAS DE NAVEGACION, CONTROL DE POLICIA, SITUADO COMO PUENTE HACIA LA GRAN SALA DE ESPERA.
- EN EL NIVEL INFERIOR, A NIVEL DE EMBARQUE, EL AREA COMERCIAL, LA CAFETERIA-RESTAURANTE, LAS INSTALACIONES Y SERVICIOS.

EL AREA COMERCIAL PARTICIPA DE LA GENEROSA ILUMINACION CENITAL, DESDE LOS LUCERNARIOS DEL VESTIBULO, Y ADEMAS CON LUZ PROPIA A NIVEL DESDE EL NORTE.

EN UNA PLANTA SUPERIOR SE DISPONE LA SALA VIP, VERDADERO BALCON INTERIOR HACIA VESTIBULO Y EMBARQUE. EN UN FUTURO SE PODRIA OCUPAR MAS PLANTA, CREANDO UNA NUEVA SALA DE EMBARQUE Y DESPLAZANDO LA SALA VIP SOBRE LA TERRAZA MIRADOR

LAS SUPERFICIES SON DIAFANAS Y FÁCILMENTE MODULABLES / SUBDIVIDIBLES SEGÚN USOS-NECESIDADES.

MEDIDAS CORRECTORAS MEDIOAMBIENTALES. ACABADOS

EL EDIFICIO MODIFICA EL ENTORNO NATURAL EXTERNO PARA MODERAR EL CLIMA.
EL OBJETIVO ES CONSEGUIR UN CONFORT INTERIOR OPTIMO (TERMICO, VISUAL, ACUSTICO, ETC) OBTENIENDO EL MÁXIMO RENDIMIENTO DE LOS RECURSOS ARQUITECTÓNICOS, PAISAJISTICOS Y DE SITUACIÓN (MECANISMOS PASIVOS), ANTES DE UTILIZAR (MASIVA E INDISCRIMINADAMENTE) LAS INSTALACIONES TÉCNICAS AL USO.

PARA ELLO, LAS SOLUCIONES TRADICIONALES DE LAS CONSTRUCCIONES MEDITERRÁNEAS NOS DAN LA PAUTA DE LO MEDIAMBIENTALMENTE SALUDABLE:
LA LONJA Y LA GALERIA CON EL GRAN BRISE-SOLEIL, COMO ELEMENTOS PERFECTOS DE CONTROL CLIMATICO Y ACONDICIONAMIENTO AMBIENTAL.

EN EL EDIFICIO, SE PRESTA ESPECIAL ATENCION A LA CUBIERTA Y LAS FACHADAS (ENVOLVENTES = ZONAS DE CONTACTO CON EL EXTERIOR). ASI:

- SE DISPONEN SENDAS CELOSIAS-TAMIZ DE SOL DIRECTO EN LAS ORIENTACIONES MAS DESFAVORABLES: ESTE-ACCESO DESDE LA PLAZA; OESTE-TERRAZA AL PUERTO Y MAR. BAJO SU PROTECCION SE CREAN DOS ESPACIOS ESTANCIALES DE TRANSICION, PROTEGIDOS Y EXTERIORES QUE RELACIONAN EL EDIFICIO DE FORMA AMABLE CON EL EXTERIOR
- LA ILUMINACION DE LOS ESPACIOS INTERIORES (EDIFICIO LINEAL AL SUR; NAVE PRINCIPAL) SE REALIZA MEDIANTE UN JUEGO DE LUCERNARIOS DE LUZ NATURAL DE GENEROSAS DIMENSIONES DISPUESTOS EN LAS CUBIERTAS, ORIENTADOS A NORTE, QUE PERMITEN  ILUMINAR SIN INCIDENCIA DE SOL DIRECTO
- APERTURA DE GRANDES VENTANALES Y MUROS CORTINA DE VIDRIO EN LA ORIENTACION MENOS CASTIGADA (NORTE – HACIA PUERTO Y MAR); O EN ZONAS PROTEGIDAS (EN ESPACIO BAJO CELOSIA)
- EDIFICIO-BANDA DE SERVICIOS (6M DE ANCHURA) DISPUESTO AL SUR. CAJA DE HORMIGON ARMADO BLANCO CON HUECOS RASGADOS, DE TAMAÑO CONTENIDO Y PROTEGIDOS CON ELEMENTOS TEXTILES (TOLDOS)
- LAS DIMENSIONES DE LA NAVE PRINCIPAL (18M DE ANCHURA) CONDUCEN A UNA SOLUCION DE CUBIERTA CON ESTRUCTURA DE BUEN ESPESOR. ESTE SE APROVECHA COMO ELEMENTO CLAVE TERMORREGULADOR (ELEMENTO DE MAYOR SUPERFICIE EXPUESTO) AL MISMO TIEMPO QUE INCORPORA LOS LUCERNARIOS-POZOS DE LUZ

ADEMÁS DE CUMPLIMENTAR LA NORMATIVA C.T.E. (CODIGO TÉCNICO DE LA EDIFICIACION), DE FORMA COMPLEMENTARIA Y PARA APROVECHAR LA EXCELENTE ORIENTACIÓN Y HORAS DE SOL, SE PROPONE LA INSTALACIÓN DE PANELES SOLARES FOTOVOLTAICOS EN CUBIERTA, QUE ASEGUREN LA AUTONOMIA EN EL SUMINISTRO HASTA UN MINIMO DEL 30% DE NECESIDADES EN HORAS DE MAYOR DEMANDA. EL PROPIO SISTEMA DE PANELES SUPONE UN AISLAMIENTO COMPLEMENTARIO EXCELENTE PARA LA CUBIERTA.

 
 
Calle El Salvador 6 - 1º   28012 Madrid  España |  s_telefono s_fax +34 913664672  |  e-mail: estudio@nogalarquitectura.es     blogger_conexion-Blogger