Felipe Nogal Bravo | Arquitecto
noticias proyectos contacto estudio  
 
imágenes planos ficha técnica +información

LEMA: BOITE Á MIRACLES
NAVARRO - MOSSENTA - NOGAL ARQUITECTOS, S.L.
FELIPE NOGAL BRAVO, co-autor como Arquitecto Socio

115 VIVIENDAS DE PROTECCION OFICIAL "LA PERLA R-11 - EMVS - AYTO. DE MADRID | 1997 - CONCURSO DE IDEAS - 1º PREMIO

  • 115VPO_LAPERLA_PL00_ACCESO PRINCIPAL 115VPO_LAPERLA_PL00_ACCESO PRINCIPAL 115VPO_LAPERLA_PL00_ACCESO PRINCIPAL
  • 115VPO_LAPERLA_PLANTA TIPO DE VIVIENDAS 115VPO_LAPERLA_PLANTA TIPO DE VIVIENDAS 115VPO_LAPERLA_PLANTA TIPO DE VIVIENDAS
  • 115VPO_LAPERLA_PLANTA ATICO 115VPO_LAPERLA_PLANTA ATICO 115VPO_LAPERLA_PLANTA ATICO
  • 115VPO_LAPERLA_PLANTAS BAJO RASANTE_S01_S02 115VPO_LAPERLA_PLANTAS BAJO RASANTE_S01_S02 115VPO_LAPERLA_PLANTAS BAJO RASANTE_S01_S02
  • 115VPO_LAPERLA_PLANTA DE CUBIERTAS_TRATAMIENTO DEL ENTORNO 115VPO_LAPERLA_PLANTA DE CUBIERTAS_TRATAMIENTO DEL ENTORNO 115VPO_LAPERLA_PLANTA DE CUBIERTAS_TRATAMIENTO DEL ENTORNO
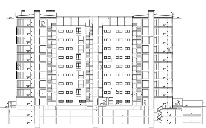
  • 115VPO_LAPERLA_SECCION TRANSVERSAL TIPO 115VPO_LAPERLA_SECCION TRANSVERSAL TIPO 115VPO_LAPERLA_SECCION TRANSVERSAL TIPO
  • 115VPO_LAPERLA_SECCION LONGITUDINAL TIPO_ORIENTACION SUR 115VPO_LAPERLA_SECCION LONGITUDINAL TIPO_ORIENTACION SUR 115VPO_LAPERLA_SECCION LONGITUDINAL TIPO_ORIENTACION SUR
  • 115VPO_LAPERLA_SECCION LONGITUDINAL TIPO_ORIENTACION NORTE 115VPO_LAPERLA_SECCION LONGITUDINAL TIPO_ORIENTACION NORTE 115VPO_LAPERLA_SECCION LONGITUDINAL TIPO_ORIENTACION NORTE
  • 115VPO_LAPERLA_ALZADO LATERAL NORTE 115VPO_LAPERLA_ALZADO LATERAL NORTE 115VPO_LAPERLA_ALZADO LATERAL NORTE
  • 115VPO_LAPERLA_ALZADO FRONTAL OESTE 115VPO_LAPERLA_ALZADO FRONTAL OESTE 115VPO_LAPERLA_ALZADO FRONTAL OESTE
  • 115VPO_LAPERLA_ALZADO LATERAL SUR 115VPO_LAPERLA_ALZADO LATERAL SUR 115VPO_LAPERLA_ALZADO LATERAL SUR
  • 115VPO_LAPERLA_VIVIENDA TIPO 1D 115VPO_LAPERLA_VIVIENDA TIPO 1D 115VPO_LAPERLA_VIVIENDA TIPO 1D
  • 115VPO_LAPERLA_VIVIENDA TIPO 2D 115VPO_LAPERLA_VIVIENDA TIPO 2D 115VPO_LAPERLA_VIVIENDA TIPO 2D
  • 115VPO_LAPERLA_VIVIENDA TIPO 3D 115VPO_LAPERLA_VIVIENDA TIPO 3D 115VPO_LAPERLA_VIVIENDA TIPO 3D
  • 115VPO_LAPERLA_VIVIENDA TIPO 4D 115VPO_LAPERLA_VIVIENDA TIPO 4D 115VPO_LAPERLA_VIVIENDA TIPO 4D
  • 115VPO_LAPERLA_DETALLE DE CONTRUCCION_FACHADA 115VPO_LAPERLA_DETALLE DE CONTRUCCION_FACHADA 115VPO_LAPERLA_DETALLE DE CONTRUCCION_FACHADA
  • 115VPO_LAPERLA_DETALLE DE CONTRUCCION_FACHADA Y PATIO 115VPO_LAPERLA_DETALLE DE CONTRUCCION_FACHADA Y PATIO 115VPO_LAPERLA_DETALLE DE CONTRUCCION_FACHADA Y PATIO
     

ORGANIZACION DE LA PROPUESTA

EL EDIFICIO SE CONCIBE DESDE UNOS CRITERIOS DE MAXIMO APROVECHAMIENTO Y RACIONALIZACION DE LA SUPERFICIE EDIFICADA, TANTO PARA LAS VIVIENDAS, COMO PARA LA RESOLUCION DE LOS NUCLEOS Y LAS SUPERFICIES COMUNES DE ACCESO.

SE PROPONE UN MODELO DE VIVIENDA IGUALMENTE RACIONAL EN SU DISPOSICION Y EN SU RESULTADO FORMAL; CAPAZ DE VARIAR SUS DIMENSIONES A PARTIR DEL MISMO ESQUEMA FUNCIONAL, FACIL DE AGREGAR, SECUENCIAR Y/O COMBINAR DESDE UNA MODULACION ESTRICTA, QUE SE REFLEJA EN LA FACHADA Y EN EL RESULTADO GLOBAL.

LAS 95 VIVIENDAS SE ALINEAN SEGUN DOS BANDAS PARALELAS Y SIMETRICAS DE 7.25 M DE ANCHURA, QUE SE COMPLETAN EN LOS TESTEROS PARA CONFORMAR UN ESPACIO INTERIOR ABIERTO DE DIMENSIONES GENEROSAS - FRANJA DE 7.5 M DE ANCHURA - LO QUE PERMITE ILUMINAR Y Y VENTILAR TODAS LAS PIEZAS DE LAS VIVIENDAS DE FORMA NATURAL ( ELIMINACION DE CONDUCTOS PARA ESTE FIN).

EN ESTE ESPACIO INTERIOR SE UBICAN LOS TRES NUCLEOS DE COMUNICACION VERTICAL (ASCENSORES MAS ESCALERA CONVENCIONAL) QUE DELIMITAN DOS PATIOS DE 10 x 7.5 M Y 16  x 7.5 M RESPECTIVAMENTE.
EN PLANTA BAJA LOS PORTALES SE ASOCIAN A CADA UNO DE ESTOS NUCLEOS, ABRIENDO ACCESOS AL CENTRAL POR LOS DOS LADOS MAYORES.

LAS DIFERENTES PIEZAS DE LAS VIVIENDAS SE AGRUPAN SEGUN DOS BANDAS PARALELAS DE USOS ESPECIALIZADOS, NITIDAMENTE DELIMITADAS Y ORIENTADAS:

-    UNA MENOR, DE 2.20 M DE ANCHURA, DONDE SE SITUAN LOS ESPACIOS "SERVIDORES" CLARAMENTE CARACTERIZADOS COMO "HUMEDOS" (COCINAS Y CUARTOS DE BAÑO) Y DE ACCESO (RECIBIDOR).
TODOS ELLOS ABREN DIRECTAMENTE AL ESPACIO INTERIOR DE LA MANZANA, LO QUE PERMITE OBVIAR LAS PIEZAS DE TENDEDERO.

-    OTRA MAYOR, DE 5.05 M DE ANCHURA, DONDE SE ALINEAN SALONES Y DORMITORIOS, QUE MIRAN AL EXTERIOR.
ESTA ORGANIZACION SE ADAPTA EN LOS TESTEROS PARA ILUMINAR LAS COCINAS DESDE LA CALLE.

LA DISTRIBUCION DE LAS VIVIENDAS EN EL EDIFICIO SIGUE LOGICAMENTE ESTE MISMO ESQUEMA DE BANDAS, DISPONIENDO EN CADA UNA DE ELLAS  Y EN SUS EXTREMOS 2 VIVIENDAS DE 3 DORMITORIOS Y 2 VIVIENDAS DE 2 DORMITORIOS. PERMITIENDO LA MAYOR FLEXIBILIDAD COMBINATORIA EN LA ZONA CENTRAL, DONDE SE INTERCALAN UNA VIVIENDA DE UN DORMITORIO MAS UNA VIVIENDA DE DOS DORMITORIOS EN PLANTAS 1  Y 2 ,Y VIVIENDAS  DE 4 DORMITORIOS EN PLANTAS 3, 4, 5 Y 6.

LOS TESTEROS ALOJAN, EXCLUSIVAMENTE, VIVIENDAS DE 2 DORMITORIOS.
EL ESQUEMA SE ADAPTA EN LAS PLANTAS SINGULARES: LA PLANTA BAJA, DONDE DESAPARECEN LAS VIVIENDAS DE LOS TESTEROS, Y LAS CENTRALES DE 1 DORMITORIO, PARA DEJAR SITIO A PORTALES Y CUARTOS DE INSTALACIONES. EN PLANTA ATICO, QUEDA AFECTADA POR EL RETRANQUEO OBLIGATORIO A LO LARGO DE MAS DE LA MITAD DE LA FACHADA, PERMITIENDO DISPONER UNA VIVIENDA DE 3 DORMITORIOS MAS UNA VIVIENDA DE 2 DORMITORIOS POR CADA BANDA.

LOS ASEOS Y COCINAS SE AGRUPAN HORIZONTAL Y VERTICALMENTE PARA SIMPLIFICAR LAS INSTALACIONES DE SUMINISTRO DE AGUA LIMPIA Y SANEAMIENTO.
JUNTO CON LAS RESTANTES INSTALACIONES DE GAS, ELECTRICIDAD Y DATOS, SE AGRUPAN EN MONTANTES ESPECIALIZADOS ASOCIADOS A LOS NUCEOS VERTICALES DE COMUNICACION, REGISTRABLES POR PLANTA Y CON RECORRIDOS MINIMOS. EL CONTROL NECESARIO MEDIANTE CONTADORES, DE CUALQUIERA DE ESTOS SUMINISTROS Y OTRAS INSTALACIONES DE APOYO, SE DISPONEN EN LOCALES ESPECIFICOS, CON ENTRADA INDEPENDIENTE Y PROPIA DESDE LA CALLE Y PORTAL.

EN LAS VIVIENDAS, LOS ESPACIOS DE DISTRIBUCION SON MINIMOS Y ASOCIADOS SIEMPRE A LOS DORMITORIOS, CONTANDO CON DOBLE CIRCULACIONA TRAVES DE SALON O COCINA.

BUSCANDO LA MAYOR OPTIMIZACION DE USOS Y SUPERFICIES SE PROPONEN COMEDORES DE TRANSICION ENTRE LOS ESPACIOS DE COCINA Y SALON, QUE PERMITEN LIBERAR PARA OTROS USOS ESTA ULTIMA PIEZA Y MEJORAR EL RENDIMIENTO DE LA COCINA.

 
 
Calle El Salvador 6 - 1º   28012 Madrid  España |  s_telefono s_fax +34 913664672  |  e-mail: estudio@nogalarquitectura.es     blogger_conexion-Blogger