Felipe Nogal Bravo | Arquitecto
noticias proyectos contacto estudio  
 
imágenes planos ficha técnica +información

LEMA:NICKELODEON
NAVARRO - MOSSENTA - NOGAL ARQUITECTOS, S.L.
FELIPE NOGAL BRAVO, co-autor como Arquitecto Socio

67 VIVIENDAS DE PROTECCION OFICIAL EN LAS ROSAS - EMVS - AYTO. DE MADRID | 1996 - CONCURSO DE IDEAS - 2º PREMIO

  • 67VPO_LAS_ROSAS_PLANTA 00_ACCESO PRINCIPAL 67VPO_LAS_ROSAS_PLANTA 00_ACCESO PRINCIPAL 67VPO_LAS_ROSAS_PLANTA 00_ACCESO PRINCIPAL
  • 67VPO_LAS_ROSAS_PLANTA TIPO DE VIVIENDAS 67VPO_LAS_ROSAS_PLANTA TIPO DE VIVIENDAS 67VPO_LAS_ROSAS_PLANTA TIPO DE VIVIENDAS
  • 67VPO_LAS_ROSAS_PLANTA ATICO RETRANQUEADO 67VPO_LAS_ROSAS_PLANTA ATICO RETRANQUEADO 67VPO_LAS_ROSAS_PLANTA ATICO RETRANQUEADO
  • 67VPO_LAS_ROSAS_NIVEL BAJO RASANTE DE GARAJE 67VPO_LAS_ROSAS_NIVEL BAJO RASANTE DE GARAJE 67VPO_LAS_ROSAS_NIVEL BAJO RASANTE DE GARAJE
  • 67VPO_LAS_ROSAS_VIVIENDAS TIPO 67VPO_LAS_ROSAS_VIVIENDAS TIPO 67VPO_LAS_ROSAS_VIVIENDAS TIPO
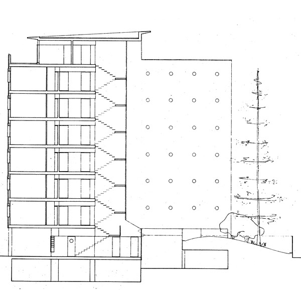
  • 67VPO_LAS_ROSAS_SECCION TRANSVERSAL TIPO_VIVIENDAS Y ESPACIOS COMUNES 67VPO_LAS_ROSAS_SECCION TRANSVERSAL TIPO_VIVIENDAS Y ESPACIOS COMUNES 67VPO_LAS_ROSAS_SECCION TRANSVERSAL TIPO_VIVIENDAS Y ESPACIOS COMUNES
  • 67VPO_LAS_ROSAS_SECCION TRANSVERSAL VIVIENDAS Y ESCALERA 67VPO_LAS_ROSAS_SECCION TRANSVERSAL VIVIENDAS Y ESCALERA 67VPO_LAS_ROSAS_SECCION TRANSVERSAL VIVIENDAS Y ESCALERA
  • 67VPO_LAS_ROSAS_ALZADO FRONTAL A CALLE PRINCIPAL 67VPO_LAS_ROSAS_ALZADO FRONTAL A CALLE PRINCIPAL 67VPO_LAS_ROSAS_ALZADO FRONTAL A CALLE PRINCIPAL
  • 67VPO_LAS_ROSAS_ALZADO LATERAL 67VPO_LAS_ROSAS_ALZADO LATERAL 67VPO_LAS_ROSAS_ALZADO LATERAL
  • 67VPO_LAS_ROSAS_ALZADO TRASERO SOBRE ZONA DE GARAJE Y JARDIN 67VPO_LAS_ROSAS_ALZADO TRASERO SOBRE ZONA DE GARAJE Y JARDIN 67VPO_LAS_ROSAS_ALZADO TRASERO SOBRE ZONA DE GARAJE Y JARDIN
     

ORGANIZACIÓN DEL PROGRAMA DE VIVIENDA COLECTIVA

LAS VIVIENDAS SE ORGANIZAN ALREDEDOR DEL ESPACIO CENTRAL QUE UNIFICA TODOS LOS ESPACIOS COMUNES DE ACCESO Y RELACIÓN ENTRE VECINOS. LOS NÚCLEOS DE COMUNICACIÓN (ESCALERA/ASCENSOR/INSTAIACIONES)SE UBICAN EN ZONAS EXTREMAS CON DISTANCIA DE UNOS 35 M. ENTRE ELLAS.
ASOCIADOS CON ELLOS SE DISPONEN LAS CAJAS/TORRE DE LOS CUARTOS TRASTEROS CON ACCESO PROPIO DESDE LOS ESPACIOS PÚBLICOS.

SE OBTIENE UN TOTAL DE 67 VIVIENDAS, REPARTIDAS DE LA SIGUIENTE MANERA: 6 VIVIENDAS DE 1 DORMITORIO, 35 VIVIENDAS DE 2 DORMITORIOS, 22 VIVIENDAS DE 3 DORMITORIOS Y 4 VIVIENDAS DE 4 DORMITORIOS.

EL ESQUEMA BASE DE LAS VIVIENDAS ES ELEMENTAL: CON UN DISTRIBUIDOR SITUADO EN LA ZONA DE ENTRADA, AL QUE DAN LAS PIEZAS DE "DÍA" (SALON/COCINA/ASEO) Y UN PEQUEÑO PASILLO A CONTINUACIÓN QUE REPARTE A LAS PIEZAS DE "NOCHE" (DORMITORIOS/BAÑOS), CON LO QUE SE CONSIGUE UNA TOTAL INDEPENDENCIA ENTRE LOS DOS ÁMBITOS.

LAS DOS CRUJIAS CENTRALES ÉXTERIORES CONTIENEN VIVIENDAS POCO PROFUNDAS (5.5 M), QUE PERMITEN DOTAR A LA CRUJÍA CENTRAL DE UNA ANCHURA ADECUADA (3.5 M) Y ORGANIZAR CÓMODAMENTE LA CALLE DE APARCAMIENTOS BAJO RASANTE. LA CRUJÍA HACIA LA CALLE PRINCIPAL SE CURVA EN LAS ESQUINAS ADOPTANDO UNA BANDA EN "C" AUMENTANDO LIGERAMENTE SU ANCHO HASTA 7.20 M.

EN LA PLANTA TIPO

LAS VIVIENDAS DE DOS DORMITORIOS OCUPAN UNA POSICIÓN CENTRAL, EN EL TRAMO RECTO DE LA FACHADA, ADOSANDO 3 UNIDADES DELMISMO TIPO EN UNA FRANJA DE 35.1 M DE LONGITUD SEGUNORIENTACIÓN ÚNICA.

LAS DE 3 DORMITORIOS SE SITÚAN EN LOS TRAMOS CURVOS DE LAS ESQUINAS, DONDE SE APROVECHA LA DOBLE ORIENTACIÓN
LAS VIVIENDAS DE 1 Y 4 DORMITORIOS APARECEN EN LA ESQUINA SUR, EN CUATRO DE LAS PLANTAS, POR TRANSFORMACIÓN DE UNA VIVIENDA DE 3 DORMITORIOS Y SU COLINDANTE DE 2

EL OTRO VOLUMEN SE VUELCA AL PARQUE/DEPORTIVO Y AL JARDÍN INTERIOR, SEGÚN DIRECCIÓN NOROESTE. SE CONFIGURA COMO UN VOLUMEN EXENTO, FLANQUEADO POR LOS HUECOS DE LAS CAJAS DE ESCALERA.

EN TODAS LAS PLANTAS (6 + ÁTICO) ALBERGA VIVIENDAS DE DOS DORMITORIOS, REPITIENDO LA MISMA FRANJA DE 3 UNIDADES ADOSADAS QUE PRESENTA EL OTRO VOLUMEN HACIA LA CALLE.

EL ÁTICO CUYA CUBIERTA VOLADA RECONSTRUYE LA UNIDAD VOLUMETRICA, SIGUIENDO LA TÓNICA DEL BLOQUE NOROESTE, CONTIENE LAS VIVIENDAS DE 2 DORMITORIOS ANTES CITADAS Y COMPLETADO CON VIVIENDAS DE 1 Y 3 DORMITORIOS AL SURESTE. ESTAS ULTIMAS OCUPANDO LAS ZONAS DE ESQUINA A TRES ORIENTACIONES DISTINTAS, CON RETRANQUEO OBLIGATORIO DE 3 METROS.

EN LA PLANTA BAJA, SOPORTALADA, SE UBICAN LAS DOS ENTRADAS AL EDIFICIO Y LOS GARAJES, ESTAS ULTIMAS ASOCIADAS A SENDOS VACÍOS QUE ABREN EL APARCAMIENTO AL EXTERIOR, FACILITANDO SU VENTILACIÓN NATURAL.
EL ESPACIO ENTRE AMBAS ENTRADAS SE DEDICA A LOS LOCALES COMERCIALES.

 
 
Calle El Salvador 6 - 1º   28012 Madrid  España |  s_telefono s_fax +34 913664672  |  e-mail: estudio@nogalarquitectura.es     blogger_conexion-Blogger